Bureau à louer
Prix : 2 700 € / Mois
Charges mensuelles : 600,00 €
caracteristiques +/- 100.00 m²
Description du bien
picto_localiser Luxembourg-Centre
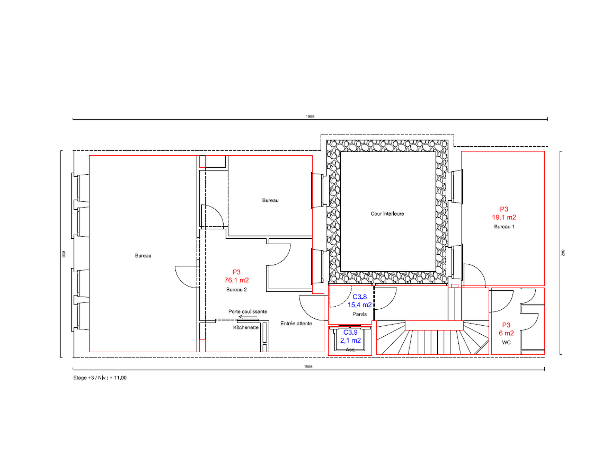
LUXEMBOURG - CENTRE VILLE - BUREAUX 5 PIECES A LOUER - SURFACE TOTALE: 100 m2, 3ème étage avec ascenseur

SITUATION CENTRALE :
zone piétonne - rue Beaumont - proche de toutes commodités et bien desservi en transports publiques. Parking public : Place du Théatre

Disposition:
Hall d'entrée avec salle d'attente / secrétariat, kitchenette séparée, 3 bureaux, et à l'entresol : un WC séparé et une salle de réunion de 19 m².
Une cave au sous-sol complète ce bien.

Option TVA + 17%

Disponibilité : De suite

Caractéristiques du bien
Intérieur
  • Nombre de pièces 5
  • Étage 3
  • Nombre d'étages 4
  • Disponibilité immédiate
  • Hall d'entrée Oui
  • Cuisine Oui
  • Bureau Oui
Sécurité
  • Parlophone Oui
Confort
  • Ascenseur Oui
Diagnostic énergétique
e 0
e 0
Localiser le bien
L'adresse exacte de ce bien n'est pas renseignée
Contactez nous











* Tous les champs sont obligatoires
Partager l'annonce